
5
Kapel en apotheek Elisabethgasthuis

5
Begijnhof Turnhout - landschap
4
Begijnhof Turnhout - bouwkundig
4
Agnetenklooster

4
Woning S

5
Ursulinenklooster
4
Aartsbisschoppelijk Paleis

5
Hof Zevenbergen
5
Begijnhof Diest

5
Allerheiligenkapel
6
Sint-Sulpitiuskerk

5
Begijnhof Herentals

5
Sint-Lambertuskerk
5
Afga Gevaert Schouw

10
Borgloon
4
Kapel O.L.V. van Zeven Weeën
4
Kapel Sint-Bavo
4
Technicum Londenstraat

5
Priorij Den Troon

5
Sint-Pieterskerk

3
Gemeentehuis Mol

5
Begijnhof Antwerpen

4
Sint-Pieterskerk
2
Sint-Antoniuskerk
5
Onze-Lieve-Vrouw Middelareskerk
5
Heilig Hartkerk
5
Sint-Antoniuskerk
4
Nieuw Kasteel - Gemeentehuis

3
Sint-Carolus Borromeuskerk en dorpsgezicht

5
Pannenfabriek 'De Panoven'

3
Amandinahuis

5
Sint-Pieter en Pauwelkerk
5
Pastorie

5
Sint-Willibrordus & Marculphuskapel

6
Luxemburg college Leuven

5
Meisjesschool

5
Gemeentehuis Oud-Turnhout

5
Heggekapel

4
Sint-Gertrudiskerk

5
Watertoren

4
Huis Dhanis
4
Sint-Willibrorduskerk

7
Huis Michel

5
Stadsgezicht Volmolenstraat
4
Kerkstraat Herentals

4
Casino Gompel
5
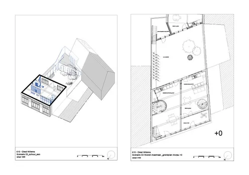
Willems Diest

4
KAPELBERG EN KAPEL O.L.V. DER ZEVEN WEEËN
3
Burgerwoning
4
Gemeentehuis Schoten
5
Dorpsgezicht Gelmelenhof Schoten

5
Pastorij Vorst (Laakdal)

5
Dekenij Mol

7
Begijnhof Hasselt

6
Gildehuizen Grote Markt & Stadspaleis Spanjepandsteeg Antwerpen
6
Herenwoning Diest

3
Villa en tuin Itegem
5
Bouwhistorisch onderzoek Annunciatenklooster Tienen
5
Hoogstamboomgaard met burgerwoning en bedrijfsgebouwen Oplinter

4
Burgerwoning Herentals

5
Grote Donderbus Leuven

3
Handschoenmarkt Antwerpen

7
Gemeentehuis Lommel

4
Tuinpaviljoen Leuven

5
Janshoeve Walsbets

4
Kasteel en -park Terlaemen

3
Watermolen en woonhuis in vakwerk Heusden-Zolder

4
Eiermarkt Antwerpen

5
Lakenhal Herentals

6
Stadhuis belfort en lakenhal Mechelen

6
Stadsgezicht Lier

4
Watermolen Genk

5
Dorpsgezicht Kampenhout

4
Stadsscholen Charles van Rysselberghe Gent

4
Gildenhuis In den Keyzer Diest

4
Molenruïne

5
Vroonstalledries Wondelgem
7
Kasteel van Laarne

3
Burgerhuis met wintertuin

5
Sint-Servatiuskerk
4
Gesloten hoeve Stasseynshuis

2
Poortgebouw Schuttersgilde
7
Kluis van Vrijhern

4
Ophaalmachines Steenkoolmijn

4
Directeurswoning

4
Sint-Lodewijksgesticht

5
Begijnhofwoningen Turnhout

4
Sint-Gertrudis Laakdal

8
Watermolen Oosterlo
12
Domein Filipkensvijver met landhuis

12
Bokrijk
3
Sint-Antonius-Abtkerk Oosthoven

6
Petroleumpier Antwerpen
